Direkt zum Seiteninhalt

Praxisplanung Zahnarzt - Marcel Baechler - Innenarchitektur, Architektur & Praxisplanung

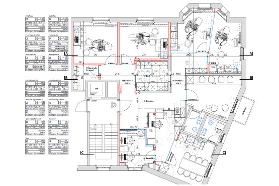
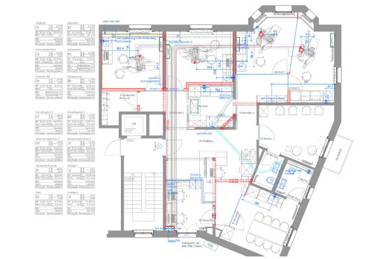
Zahnarztpraxis Breitenrain | Bern

Bauherr: Dr. med. dent. Jeanne Gerber, Bern
Realisierung: 2018
Auftragsart: Wettbewerb

Innenarchitektur: Marcel Baechler, Innenarchitekt vsi.asai.
Bauleitung: Marcel Baechler, Innenarchitekt vsi.asai.


Frau Dr. med. dent. Jeanne Gerber beruf sich auf eine Wettbewerb unter den Praxisplaner und entschied sich anschliessend für uns. Unser Konzept überzeugte Sie am Besten.

Vor dem Umbau trafen wir einen grossen Raum im Stil der Endsechziger Jahre mit einem gebogenen Empfang und Backoffice an. Einen Warteraum, der zusätzlich mit einem Lager- und Putzschrank bestückt war. Eine abgehängte Tannentäfer Decke schmückte die Decke. Mit dem eleganten vorgesetzten Empfangstresen zeigen wir heute dem Patienten, wo er sich anmelden muss. Durch den durchgehenden Bodenbelag mittels Eichenparkett erhalten wir eine Durchgängigkeit im Boden und verbinden so die Räume zu einem Ganzen. Mit dem neuen zeitgemässen LED-Licht bringen wir, neben dem guten Licht, ein zusätzliches Gestaltungselement. Die grösste Herausforderung war, dass wir nur fünf Wochen Umbauzeit erhielten, was in einem solchen Projekt unrealistisch ist.  Dank des Einsatzes aller beteiligten Unternehmen und den Schlussspurt über die Weihnachtstage konnten wir es trotzdem realisieren und mit sechs wochen Umbauzeit pünktlich eröffnen.

Line
Line
Zurück zum Seiteninhalt