HNO/ORL Neuengasse | Bern
Praxis für Hals-, Nasen- und Ohrenkrankheiten, Gesichts- und Halschirurgie FMH
Auftraggeber: Dres. med. A. Eichenberger und B. Blaser, Bern
Realisierung: 2017
Auftragsart: Direktauftrag
Dr. Eichenberger und Dr. Blaser beauftragten uns direkt ihre HNO-Praxis neu zu gestalten. Ihre Forderung war einzig ein zusätzliches Behandlungszimmer unterzubringen.
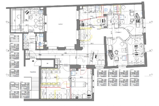
Die grosse Schwierigkeit an ihrer Praxis war der lange schlauchartige Korridor und dass der Patient beim hereinkommen sich zuerst orientieren muss, wohin er laufen soll. Ursprünglich war auch der Auftrag, dass wir die Hörkabine im heutigen Warten nicht anrühren durften. Genau diese Knacknuss liess sich nicht lösen und wir konnten so keinen vernünftigen Workflow generieren. Wohin mit dem Warten, das bis anhin im BHZ 3 über eine interne zweistufige Treppe erreichbar war. Alle waren nicht glücklich.
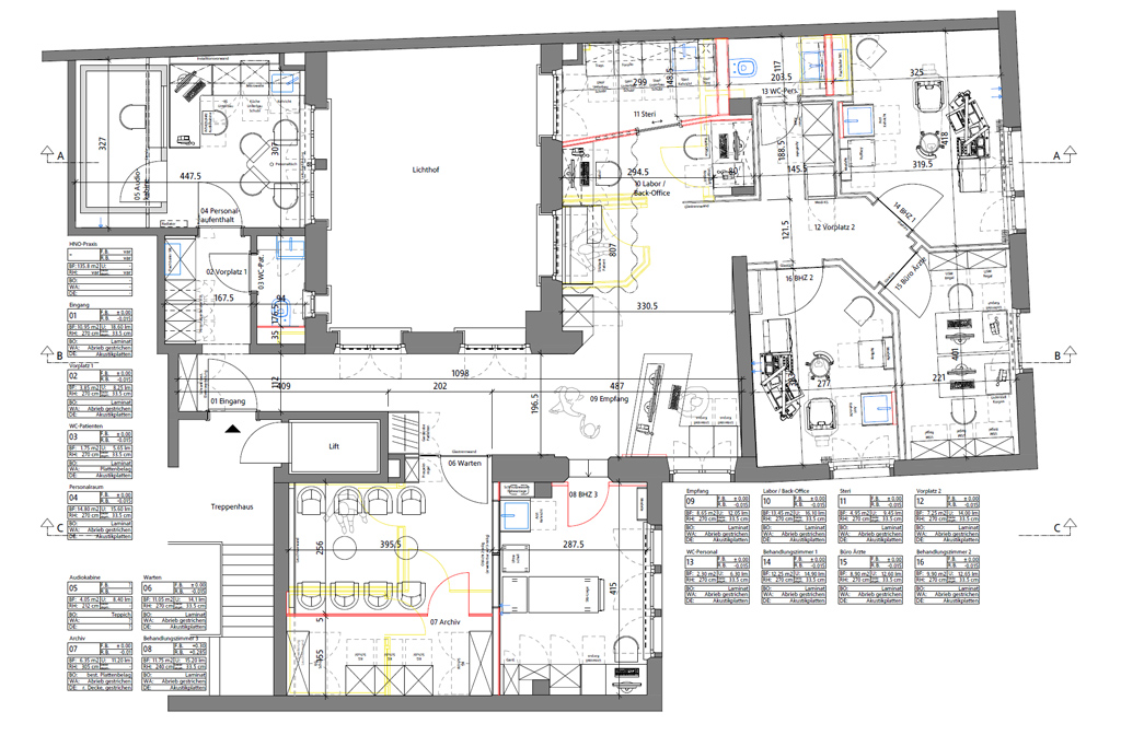
Ich entschied mich als Proband bei den Ärzten untersuchen zu lassen, um die Abläufe besser zu verstehen. Diese Massnahme führte zur Erkenntnis das ihre "heilige" Hörkabine absolut nichts Wert war und ich die Ärzte davon überzeugen konnte diese uralten Vehikel zu entsorgen und das wir uns eine neue Hörkabine organisieren. So konnte endlich einen sehr guten Workflow generiert werden und die Patienten sind nun ebenerdig im Warten zu Hause. Die Hörkabine kombinierte ich mit dem Personalaufenthaltsraum. Mit all diesen Massnahmen konnte ich inzwischen eine gute Lösung dem Ärzteteam anbieten. Heute sind beide Ärzte äusserst zufrieden mit ihrer neugestalteten Praxis.
Vor- | Nachher (Schieber nach Links und Rechts bewegen)